Böblinger Flughafengeschichten
Altes und Interessantes
Zum Inhalt springen
Startseite
Vom Flugplatz zum Flugfeld
Daimler
DMG-Motorschule
Flugzeugmotoren
Flugzeugbau
Militärflugplatz
Abstürze
Abstürze nach Datum
Ausflüge
Böblingen mit Flugzeug
Egon Graf v.Beroldingen
Erlebnisse eines Schülers
Göring
Grüße aus Böblingen
Inspektion der Fliegertruppen (IdFlieg)
Kampfstaffel
Landesarchiv
Nägele,Reinhold
Schock,Karl
Pflicht + Front + Heimat
Jasta 28
Singer,Eugen
Soldatenrat
Werftschule
Wilhelm II. König v.Württemberg
Passagierflug
1889-1914 Luftfahrt im Stuttgarter Raum
1919-1925 Nutzung bis Gründung „Luftverkehr Württemberg A.G.“
1921–1923 Strähle,Paul
1925 Linienflug
Streckennetze
1926 Lufthansa
Vorwort
Böblingen
Werft
Kopp,Else
Siedlung + Weihnachten
Deutsche Lufthansa 1926-1936
Flugleiter Dienstanweisung
1939 Wechsel nach Stuttgart
LH-Werkstätten mit Zwangs- Fremdarbeitern
Freiburg-Böblingen
1919-1945 (alphabetisch)
Akaflieg Stuttgart
Arbeiter-Flugsport-Verband Böblingen e. V.
Beschreibungen
1925 Das Buch der Stadt
1928-06 Württ. Wirtschaftszeitschrift
1928-10 zur ILA Berlin
1928/1929 Württ. Jahrbuch f. Statistik
1930 Stadt Böblingen
1949-04 Kraut,Georg
Bildtafeln zur Geschichte
Chamberlin
Deutsche Luftfahrtmuseum
Deutscher Fliegertag 1925
Fliegerhorst
Scheinanlagen
Fliegerschule
Flugschüler 1931
Jugendfliegerhorst
Wulf-Diether Graf zu Castell-Rüdenhausen
Fliegerstadt/Ausflugsziel/Werbung
Flugsicherung
Flugzeugtypen
Gebäude
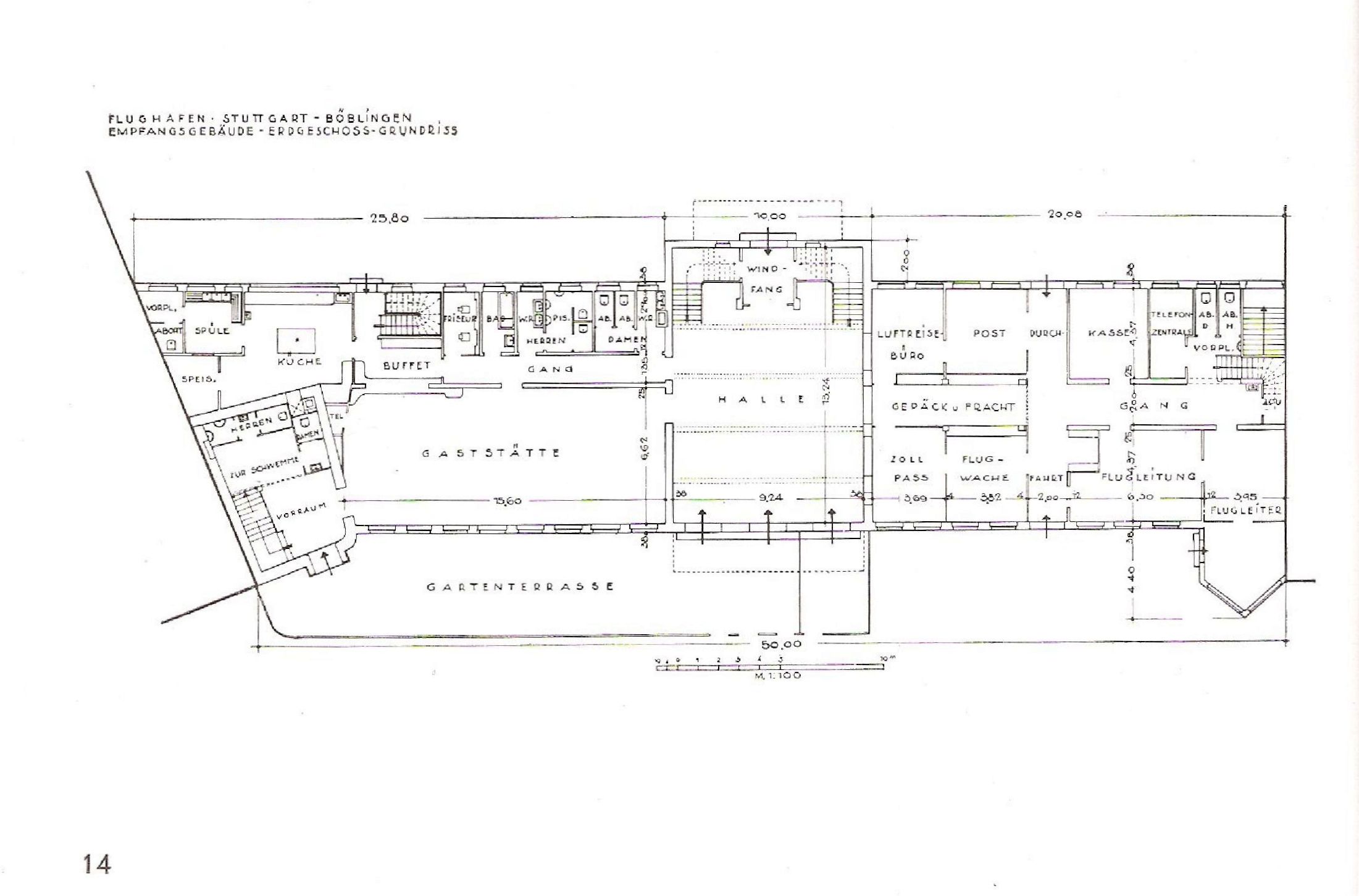
1925 1.Empfangsgeb.
1925 Flugzeughalle
1927 neue Werft
1928 2. Empfangsgeb.
1928-06 Einweihung Broschüre
Flughafenhotel
1928 Werft (Neubau)
Großnebelversuche
Himmelslaus
Himmelsschreiber
Hirth-Versuchsbau G.m.b.H.
Illg,Hermann
Fliegeralbum
Ital. Fliegerstaffel
Album
Katapultflug Südamerika
Ablauf eines Fluges
Köhl,Hermann
Luftangriffe WKII
Parseval-Naatz D-PN30
Prominente Landung
Rauch- ofen/melder
Riediger,Anton
Rosenberger,Adolf
Schindler,Fritz
Das Unglück
Schumann,Hedy
Spengler,Walter
Veranstaltungsorte
Schwäb. Hüttenwerke
Kamm,Wunibald
SHW-Wagen
Schweiz
Diener,Nelly
Unglück
Mittelholzer-Flug Leipzig-Zürich
Siebenländerflug 1926
Soldenhoff,Alexander
Langguth,Wilhelm
Voigt,Thomas
Tanken
Todt,Erich
Wetterwarte
Zeppelin 1929
Zeppelin 1931
Junkers G38 D-2000
Zeppelin div.
1945 –
1945-1975 Reparaturwerk
Abbildungen
1975 bis 1992-01 BMF (US-Army)
1989 Patenschaft
1992 – 2002 Überlegungen + Nutzungen
2003 bis 2005 Sanierung
2015 100. Jubiläum (Militärflugplatz)
Flugfeldmagazin (Sonderausgabe)
Kreiszeitung (Sonderausgabe)
2020 Aviation History Luz,Bernd
2023 Flugfeld Stelenweg
2023 Ehrennadel
2024 100. Jubiläum (Festakt Stuttgart)
2025 100. Jubiläum (Passagierflug)
Kalender 2025
Schwäbische Heimat
Fest 14.09.2025
Geschichtssalon
Flugfeld Strassenplan
IMPRESSUM
1928-06 Einweihung Broschüre
Teilen Sie dies mit:
Auf Facebook teilen (Wird in neuem Fenster geöffnet)
Facebook
Auf X teilen (Wird in neuem Fenster geöffnet)
X
Mehr
Einen Link per E-Mail an einen Freund senden (Wird in neuem Fenster geöffnet)
E-Mail
Gefällt mir
Wird geladen …
Hinterlasse einen Kommentar
Antwort abbrechen
Δ
213.824 Zugriffe bisher
Suche nach:
Google translate
UNSERE LINKS
KLEMM
Flugzeuge
FLUGTAGE
nach dem 2.Weltkrieg
Blogseiten
Vom Flugplatz zum Flugfeld
Daimler
DMG-Motorschule
Flugzeugmotoren
Flugzeugbau
Militärflugplatz
Abstürze
Abstürze nach Datum
Ausflüge
Böblingen mit Flugzeug
Egon Graf v.Beroldingen
Erlebnisse eines Schülers
Göring
Grüße aus Böblingen
Inspektion der Fliegertruppen (IdFlieg)
Kampfstaffel
Landesarchiv
Nägele,Reinhold
Schock,Karl
Pflicht + Front + Heimat
Jasta 28
Singer,Eugen
Soldatenrat
Werftschule
Wilhelm II. König v.Württemberg
Passagierflug
1889-1914 Luftfahrt im Stuttgarter Raum
1919-1925 Nutzung bis Gründung „Luftverkehr Württemberg A.G.“
1921–1923 Strähle,Paul
1925 Linienflug
Streckennetze
1926 Lufthansa
Vorwort
Böblingen
Werft
Kopp,Else
Siedlung + Weihnachten
Deutsche Lufthansa 1926-1936
Flugleiter Dienstanweisung
1939 Wechsel nach Stuttgart
LH-Werkstätten mit Zwangs- Fremdarbeitern
Freiburg-Böblingen
1919-1945 (alphabetisch)
Akaflieg Stuttgart
Arbeiter-Flugsport-Verband Böblingen e. V.
Beschreibungen
1925 Das Buch der Stadt
1928-06 Württ. Wirtschaftszeitschrift
1928-10 zur ILA Berlin
1928/1929 Württ. Jahrbuch f. Statistik
1930 Stadt Böblingen
1949-04 Kraut,Georg
Bildtafeln zur Geschichte
Chamberlin
Deutsche Luftfahrtmuseum
Deutscher Fliegertag 1925
Fliegerhorst
Scheinanlagen
Fliegerschule
Flugschüler 1931
Jugendfliegerhorst
Wulf-Diether Graf zu Castell-Rüdenhausen
Fliegerstadt/Ausflugsziel/Werbung
Flugsicherung
Flugzeugtypen
Gebäude
1925 1.Empfangsgeb.
1925 Flugzeughalle
1927 neue Werft
1928 2. Empfangsgeb.
1928-06 Einweihung Broschüre
Flughafenhotel
1928 Werft (Neubau)
Großnebelversuche
Himmelslaus
Himmelsschreiber
Hirth-Versuchsbau G.m.b.H.
Illg,Hermann
Fliegeralbum
Ital. Fliegerstaffel
Album
Katapultflug Südamerika
Ablauf eines Fluges
Köhl,Hermann
Luftangriffe WKII
Parseval-Naatz D-PN30
Prominente Landung
Rauch- ofen/melder
Riediger,Anton
Rosenberger,Adolf
Schindler,Fritz
Das Unglück
Schumann,Hedy
Spengler,Walter
Veranstaltungsorte
Schwäb. Hüttenwerke
Kamm,Wunibald
SHW-Wagen
Schweiz
Diener,Nelly
Unglück
Mittelholzer-Flug Leipzig-Zürich
Siebenländerflug 1926
Soldenhoff,Alexander
Langguth,Wilhelm
Voigt,Thomas
Tanken
Todt,Erich
Wetterwarte
Zeppelin 1929
Zeppelin 1931
Junkers G38 D-2000
Zeppelin div.
1945 –
1945-1975 Reparaturwerk
Abbildungen
1975 bis 1992-01 BMF (US-Army)
1989 Patenschaft
1992 – 2002 Überlegungen + Nutzungen
2003 bis 2005 Sanierung
2015 100. Jubiläum (Militärflugplatz)
Flugfeldmagazin (Sonderausgabe)
Kreiszeitung (Sonderausgabe)
2020 Aviation History Luz,Bernd
2023 Flugfeld Stelenweg
2023 Ehrennadel
2024 100. Jubiläum (Festakt Stuttgart)
2025 100. Jubiläum (Passagierflug)
Kalender 2025
Schwäbische Heimat
Fest 14.09.2025
Geschichtssalon
Flugfeld Strassenplan
IMPRESSUM
Abonnieren
Abonniert
Böblinger Flughafengeschichten
Schließe dich 45 anderen Abonnenten an
Anmelden
Du hast bereits ein WordPress.com-Konto?
Melde dich jetzt an.
Böblinger Flughafengeschichten
Abonnieren
Abonniert
Registrieren
Anmelden
Kurzlink kopieren
Melde diesen Inhalt
Beitrag im Reader lesen
Abonnements verwalten
Diese Leiste einklappen
Kommentare werden geladen …
Verfasse einen Kommentar …
E-Mail (Erforderlich)
Name (Erforderlich)
Website
%d